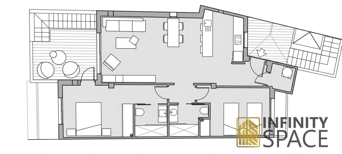
Mieszkanie na sprzedaż, Warszawa Praga-Południe Gocław, Perkuna
- Rodzaj:sprzedaż
- Powierzchnia:82 m2
- Pokoje:3
- Piętro:1 z 5
- Rok budowy:1995
980 000,00 PLN
11 951,22 PLN
Mieszkanie na sprzedaż, Warszawa Praga-Południe Gocław, Perkuna
11 951,22 PLN
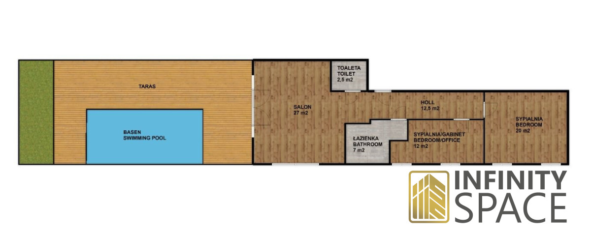
Mieszkanie na wynajem, Warszawa Praga-Południe, Kamionkowska
86,44 PLN
Mieszkanie na sprzedaż, Warszawa Wilanów Błonia Wilanowskie, Sarmacka
18 886,78 PLN
Mieszkanie na wynajem, Warszawa Mokotów Czerniaków, Ludwika Idzikowskiego
66,00 PLN
Mieszkanie na wynajem, Warszawa Śródmieście, Stawki
75,00 PLN
Mieszkanie na sprzedaż, Warszawa Mokotów Sielce, Jana Feliksa Piwarskiego
14 872,34 PLN
![]() SPRZEDAJ NIERUCHOMOŚĆ SZYBKO I KORZYSTNIE Kompleksowo zajmiemy się Twoją nieruchomością. Za Ciebie przygotukjemy profesjonalna ofertę sprzedaży, zajmiemy się prezentacją nieruchomości oraz poprowadzimy Cię przez cały proces sprzedaży, aż do przekazania mieszania nowym właścicielom. |
![]() ZDEJMIJ SOBIE WYNAJEM Z GŁOWY I ZARABIAJ PASYWNIE Nasz zespół licencjonowanych zarządców zadba o Twoje mieszkanie kompleksowo. Zajmiemy się znalezieniem odpowiedniego najemcy i przygotujemy odpowiednie dokumenty, a w trakcie najmu zajmiemy się dokonywaniem opłat eksploatacyjnych, usuwaniem usterek i kontrolą mieszkania za Ciebie. |
![]() ZNAJDZIEMY DLA CIEBIE RZETELNEGO NAJEMCĘ Poprzez nowoczesny marketing oraz wieloletnie doświadczenie znajdziemy dla Ciebie rzetelnego najemcę, którego zweryfikujemy pod kątem tożsamości, zadłużenia i zatrudnienia, a także przygotujemy wszystkie niezbędne dokumenty. Powierz nam swoje mieszkanie i ogranicz swoje zaangażowanie do minimum. |
![]() ZNAJDŹ KREDYT NA NAJLEPSZYCH WARUNKACH Nasi doradcy kredytowi pomogą Ci w szybkim uzyskaniu kredytu na najlepszych warunkach. Nie idź samodzielnie do banku, nie korzystaj z niezweryfikowanych doradców i nie obniżaj swojego scoringu bankowego. Skorzystaj z naszej sieci najlepszych doradców kredytowych na rynku. |
![]() POZNAJ OFERTĘ MIESZKAŃ OD DEWELOPERÓW Nie ograniczaj się do mieszkań, które są już urządzone. Powiedz nam czego szukasz, a znajdziemy dla ciebie mieszkanie z rynku pierwotnego, które będziesz mógł urządzić od zera i dostosować idealnie do swoich potrzeb. Współpraca z największymi deweloperami w Polsce gwarantuje nam dostęp do ogromnej bazy mieszkań, zarówno gotowych jak i w budowie. |
![]() POWIEDZ NAM CZEGO SZUKASZ, A MY ZAJMIEMY SIĘ RESZTĄ Wieloletnie doświadczenie, szerokie kontakty oraz dostęp do wielu baz danych z ofertami pozwala nam znaleźć prawdziwe perełki dla rynku. Powiedz nam, czego dokładnie szukasz a my znajdziemy Twoje wymarzone mieszkanie i wesprzemy cię na każdym etapie transakcji. |
Infinity Space działa na najwyższym poziomie, obsługa klienta od A do Z.
Jasne i przejrzyste zasady, pomoc w sprzedaży mieszkania sprawiły że polecam tę agencję.
Jakub
Bardzo profesjonalna firma. Pełne zaangażowanie na każdym etapie sprzedaży. Dawno nie spotkałem się z takim podejściem do sprawy Klienta jak w Infinity. Szczerze polecam.
Mateusz
Polecam w 100%. Wszystko zgodnie z umową, a przy tym profesjonalna obsługa i owocna współpraca !
Paweł
Sympatycznie, miło, kompetentnie i skutecznie. Pełne zaangażowanie i profesjonalizm. Polecam!
Marin
Had a great experience with Infinity Space.
The agent was always responsive, efficient and helpful. I managed to secure my rental in only a few days.
The agent also offered to help me organise the wifi installation as often the sales people behind the general phone number don’t speak english.
Would highly recommend!
Donatas